8 Modelos de Plantas de Sobrados pequenos
Preparamos 8 Modelos de Plantas de Sobrados pequenos que podem ser úteis pra quem pretende iniciar uma construção de um sobrado, as plantas podem ser bem variadas de acordo com a necessidade de cada um.
Quando as pessoas optam em construir uma casa, são muitos os detalhes que devem ser organizados e planejados. Normalmente, quando o espaço do terreno onde será construída a casa não é muito grande, as pessoas acabam optando pela construção de sobrados, que é uma ótima forma de aproveitar melhor o espaço.
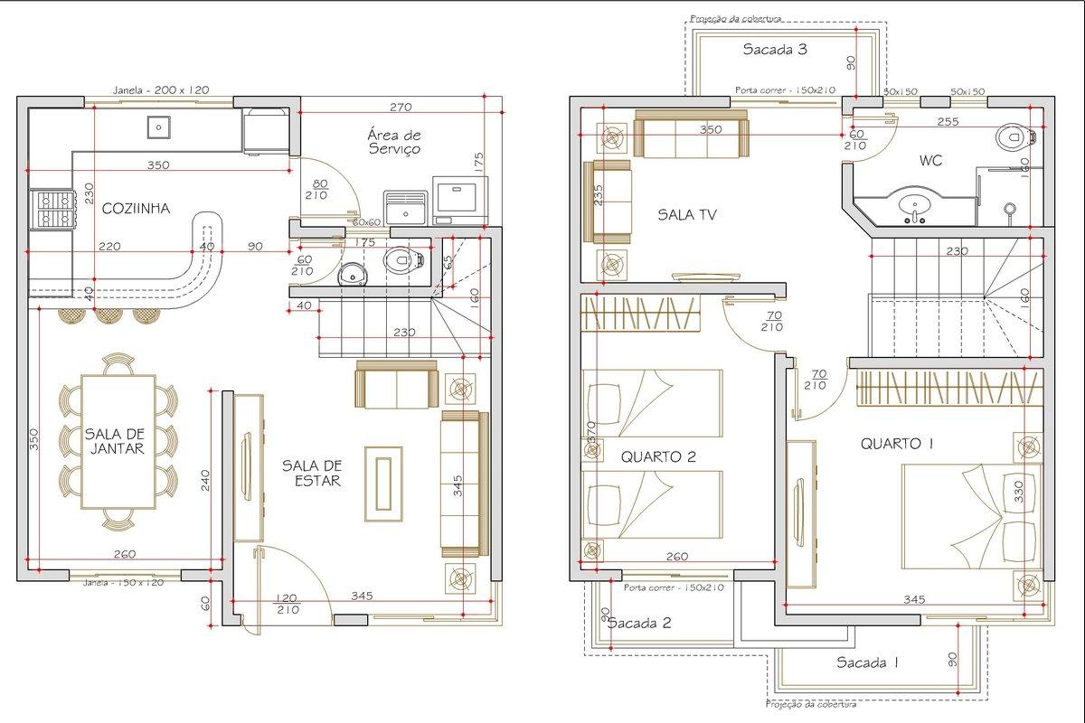
Os sobrados pequenos, por exemplo, são aqueles em que normalmente não possuem tantos cômodos, porém são cômodos maiores e com mais conforto. As plantas de sobrados pequenos, por exemplo, devem ser muito bem planejadas.
Modelos de plantas de sobrados pequenos
Os modelos de plantas de sobrados pequenos são bem variados. Na maioria dos modelos, é muito comum que as pessoas optem em fazer salas, banheiro social e cozinha na parte inferior da casa e na parte superior os quartos ou suítes, seja eles quanto for e valorizando ainda mais o espaço, fazendo quartos grandes e confortáveis.
Além disso, é fundamental que nas plantas de sobrados pequenos tenha também a área externa da casa, que deve conter um quintal por menor que seja, além da garagem que hoje em dia é essencial em qualquer casa.
É possível encontrar modelos de plantas de sobrados pequenos em vários sites especializados em arquitetura, porém, recomenda-se que seja contratado um especialista na área, como um arquiteto, para que seja feita a planta com mais detalhes, com todos os tamanhos dos cômodos, já que a extensão do terreno é fundamental nesse momento.
Dependendo do espaço que o terreno tenha, ainda é possível fazer uma ótima área de lazer para a família e amigos, que pode conter uma churrasqueira de alvenaria, jardim e até mesmo uma piscina. Mas há também quem prefira reservar uma parte na área externa para que seja feita a lavanderia.











